$25,500
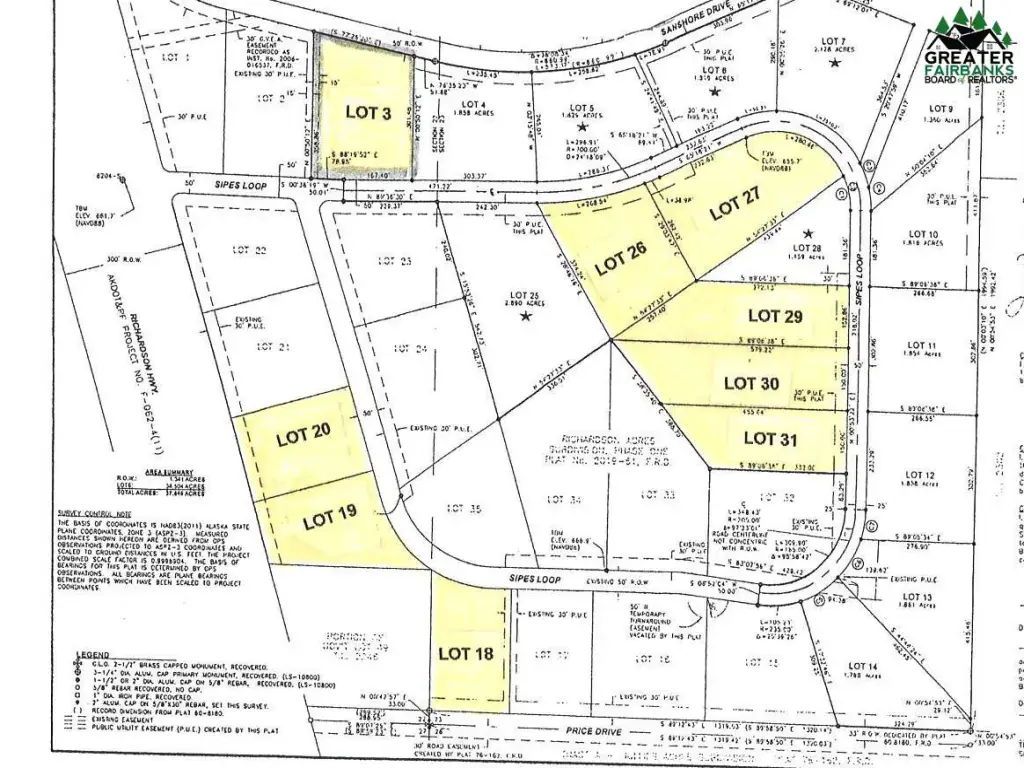
L29 SIPES DR
Salcha, AK, 99714
New subdivision near the Salcha River. Approximately 3 miles before Harding Lake. Owner finance available of 15% down, 7 years, and 8 % interest.
Property Details
Price:
$25,500
MLS #:
153787
Status:
ACTIVE
Baths:
0
Type:
Land
Neighborhood:
salcha
Listed Date:
Sep 18, 2023
Lot Size:
72,701 sqft / 1.66 acres (approx)
Schools
Interior
Exterior
Financial
Debbie Joslin combines her expertise in the rural Alaska real estate market with her love for helping people. Debbie has lived in the Delta Junction area since 1990 and loves the Alaska lifestyle. As the daughter of a Korean war veteran, Debbie has always had a special affection for our military and is an expert in helping active and retired military members fulfill their real estate goals in the Interior of Alaska. Debbie’s clients say she goes above and beyond to “get er done.” Debbie…
More About DebbieMortgage Calculator
Map
Community
- AddressL29 SIPES DR Salcha AK
- NeighborhoodSALCHA
- CitySalcha
- Zip Code99714
Similar Listings Nearby
Property Summary
- L29 SIPES DR Salcha AK is a Land for sale in Salcha, AK, 99714. It is listed for $25,500 and features 2 acres. To schedule a showing of MLS#153787 at L29 SIPES DR in Salcha, AK, contact your Debbie Joslin Realty, LLC agent at 907-895-9999.

L29 SIPES DR
Salcha, AK







